Warning: SessionHandler::read(): open(/var/www/100500kotlov.ru/data/mod-tmp/sess_d1695c4272d4b7df21b7be6d66dae0ea, O_RDWR) failed: No space left on device (28) in /var/www/100500kotlov.ru/data/www/kotlom.ru/vendor/symfony/http-foundation/Session/Storage/Proxy/SessionHandlerProxy.php on line 59
Колосник задний гладкий малый 00.7032.066 — купить в Элисте | Цена производителя

Колосник задний гладкий малый 00.7032.066

Цена
Цена по запросу
Доставляем Колосники чугунные
в г. Элиста

Кратко о характеристиках

Тип колосникаКолосники для топки ТШПМ

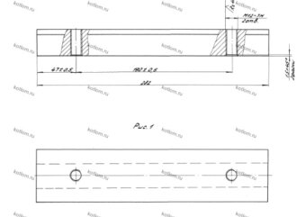
Колосник задний гладкий малый в Элисте – деталь колосниковой решетки, располагающаяся внутри топки котельного агрегата. Колосник обеспечивает стимуляцию процесса горения, за счет проникновения воздуха под топливо. Используется в работе механических топок ТШПМ

Характеристики

Серия
00.7032.066
Применяемость
Топка с шурующей планкой ТШПМ
Масса, кг
2.6
Цена, руб.
Тип колосника Колосники для топки ТШПМ
Как все происходит
на видео
Смотреть видео галерею
Возникли
вопросы?
Закажите консультацию
Или позвоните
8 (800) 551-45-60
Ответим на вопросы
Расскажем о скидках
Презентуем товар
Поможем выбрать
Доставляем Колосники чугунные
в г. Элиста

Устройство и принцип работы

Колосники задний гладкий малый изготавливаются из жаропрочного чугуна и хорошо выдерживает самые высокие температуры до 1000 градусов. Решетка располагается между камерой и зольником, что позволяет легко удалить золу с поверхности решетки, не препятствуя проникновению воздуха под топливо. Для этого, между колосниками, предусмотрены пространства, которые составляют около 40% от общей площади решетки.

Особенности и преимущества

  • Способствует интенсивности горения;
  • Обеспечивает полный расход топлива;
  • Гарантирует прочность и жаростойкость;
  • Обладает высоким процентом КПД (более 90%);
  • Имеет примитивная конструкция.

Установка и комплектация

Для обеспечения теплового расширения, при монтаже колосниковой решетки, оставляют шов в 5 мм. При установке важно соблюдать нормы СНиП и руководствоваться «Правилами устройства и безопасной эксплуатации паровых и водогрейных котлов».

Следите за новостями в социальных сетях
Наши цифры
скажут за нас все
10
Срок эксплуатации оборудования – более десяти лет
20
Двадцать лет
трудимся для вас
10
Меньше десяти дней
на изготовление товара
500
Более пятисот
точек поставки
Вы смотрели